
【 微信扫码咨询 】
13819771982

一、用途
BP8Y频敏变阻器实质上是一种无触点电磁元件,相当于一个等值阻抗,在电动机起动过程中,由于等值阻抗,随转子电流频率减小而自动下降,从而只需一级变阻器就可把电动机平稳的起动起来。
BP8Y频敏变阻器的工作条件:
依据操作的频繁程度不同,可分为三类:
第一类:稍频繁,每小时100-400次,机械车间的桥式吊车上除主钩外,平移机钩上的电机,出米辊道,拉钢机等,大多数刚起动就断电。
第二类:较频繁,每小时400-600次。冶金轧钢四间桥式吊车,除主钩外,平移机钩上的电机,轧机前后工作辊道,延伸辊道等,大多数刚起动就断电。
第三类:频繁操作,第小时600-1000次,升降后,升降台辊道,压下装置,拔钢机,轧机中辊。
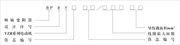
二、BP8Y频敏变阻器型号意义
三、BP8Y频敏变阻器结构及安装尺寸
BP8Y频敏变阻器实质是一个铁芯,损耗特大的三相电抗器。它由数片山形钢板叠合而成,每块钢板之间有气隙垫片的铁芯及线圈两个主要部分组成。铁芯采用冷冲制成的山字型结构。
结构及安装尺寸见上图。
四、BP8Y系列频敏变阻器外开形图及安装尺寸
代号铁芯编号 排数L1L2H1H2B1B2
1#BP8Y-104BP8Y-106BP8Y-108BP8Y-110160230181221125151177203225251277303
8#BP8Y-804BP8Y-806BP8Y-808BP8Y-810BP8Y-812230355215260122158194230166322358394430466
9#BP8Y-906BP8Y-908BP8Y-910BP8Y-912330510365410163209255301363409455506
五、系列表
根据电机规格,操作频繁程度不同,可在系列表中直接查出频敏变阻器规格。
